Omschrijving
Appartement Putstraat 14 B te Eygelshoven
Een goed onderhouden appartement met balkon in het centrum van Eygelshoven.
In hartje Eygelshoven, op loopafstand van de Markt bieden wij u dit nette appartement aan. Het appartement met één slaapkamer is op de tweede verdieping gelegen, het abonnement op de sportschool hoeft u niet te verlengen want er is helaas geen lift.
Appartement
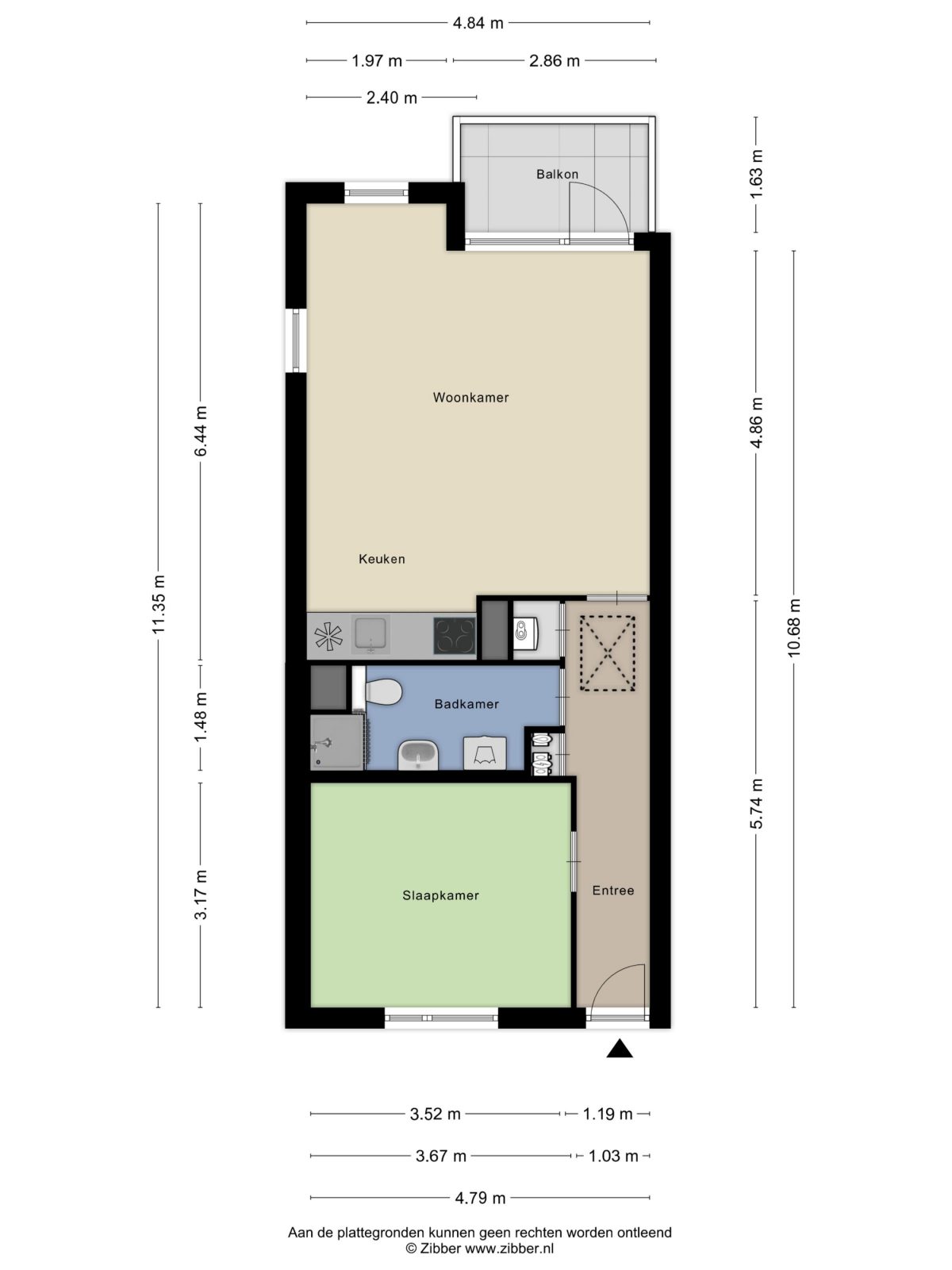
Via de gezamenlijke ingang (waar de brievenbussen en het bellentableau zich bevinden) komt men bij het trappenportaal met de trappen naar het appartement. Het appartement kom je binnen via de overloop, deze gaat over in de lichte ruime woonkamer welke je omarmt en waar je je meteen thuis voelt. Door de grote raampartijen is er veel lichtinval in de woning. De open keuken met apparatuur en kastruimte is zeer recent geplaatst en klaar voor het bereiden van je favoriete maaltijd.
Vanuit de woonkamer loop je zó het zonnige balkon op: een heerlijke buitenruimte, begin hier je dag met een kop koffie in de ochtendzon of sluit de avond af met een goed glas wijn onder de sterren.
De moderne badkamer, recent vernieuwd, is uitgerust met een inloopdouche en een wastafel, tevens bevindt zich in de badkamer het moderne hangtoilet.
Aan de achterkant van de woning bevindt zich de ruime slaapkamer, eveneens voorzien van een moderne laminaatvloer.
En alsof dat nog niet genoeg is, beschikt het appartement over een bovenverdieping met veel extra opbergruimte, te bereiken via de vlizotrap, voor de fiets is er op de begane groen nog een extra bergruimte.
Al met al een instapklaar appartement, verhuizen en je kunt meteen genieten van deze geweldige plek om te wonen.
Bijzonderheden
Kale huurprijs: € 924,00 per maand
Servicekosten: € 36,00 per maand
Borg is gelijk aan een maandhuur.
Aanvaarding: in overleg maar is mogelijk op korte termijn.
Het appartement is minder geschikt voor kinderen e/o huisdieren!
HUURTOESLAG MOGELIJK!
De huurprijs is gebaseerd op het resultaat van de huurprijscheck.
Gegadigden welke een werkgeversverklaring kunnen overleggen verdienen onze voorkeur!
Heeft u interesse in dit appartement ? Vult u dan ons huurformulier in op onze website: www.brouwer-vastgoedbeheer.nl
Voor meer informatie kunt u tijdens kantooruren van maandag t/m vrijdag van 8.30 tot 12.30 uur telefonisch contact met ons opnemen,
op telefoonnummer: +31 (0)6-51 28 64 60.
* Alle maten zijn circa maten;
* Aan deze presentatie kunnen geen rechten worden ontleend;