Gelegen in een rustige en kindvriendelijke nieuwbouwwijk in Maastricht bieden wij deze moderne en uitstekend onderhouden woning aan. De woning is gesitueerd in een groene omgeving met diverse speelvoorzieningen, scholen en winkels op korte afstand, wat het een ideale plek maakt voor gezinnen.
De woning beschikt over een lichte en ruime woonkamer voorzien van een luxe PVC vloer met vloerverwarming en aan de achterzijde een grote raampartij welke zorgt voor veel natuurlijk lichtinval. De moderne open keuken is voorzien van functionele keuken-installatie met voldoende opbergruimte inclusief de navolgende apparatuur: koelkast, combi oven-magnetron, inductie kookplaat, wasemkap en een uiteraard een vaatwasser. De keuken biedt volop ruimte om gezellig te koken en te tafelen. Vanuit de woonkamer heeft u toegang tot de fraai aangelegde achtertuin met een stenen tuinhuis, waar u in alle rust kunt genieten van het buitenleven.
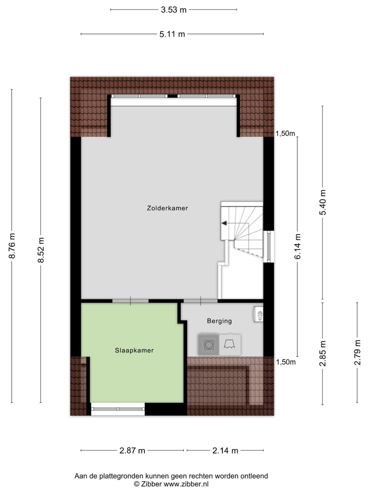
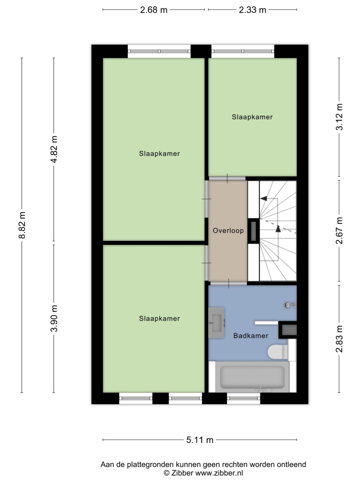
Op de eerste verdieping bevinden zich 3 ruime slaapkamers , drempelloos en voorzien van een nette PVC vloer , tevens ligt op deze verdieping een nette, eigentijdse badkamer voorzien van een bad, een inloopdouche, een wastafel met onderbouwmeubel en een tweede hangtoilet. De tweede verdieping tenslotte is voorzien van een grote dakkapel aan de voor- en achterzijde wat deze verdieping tot een ruimte maakt met veel extra mogelijkheden, deze verdieping is reeds opgedeeld in een werkkamer en een ruimte voor een extra slaapkamer of hobbyruimte. De WTW installatie en de CV ketel bevinden zich, zij het netjes afgescheiden ook op deze verdieping, tevens bevindt zich hier ook de witgoedaansluitingen
De woning is volledig geïsoleerd en energiezuinig, wat zorgt voor een comfortabel woonklimaat en lage energielasten. Daarnaast is er voldoende parkeergelegenheid voor de deur en in de directe omgeving.
Kortom: een instapklare gezinswoning op een fijne locatie in Maastricht, waar rust, ruimte en voorzieningen perfect samenkomen.
begane grond:
Eerste verdieping;
Tweede verdieping;
Bijzonderheden:
Vraagprijs: € 449.500,00 K.K.
Beschikbaarheid; in overleg.
Voor meer informatie kunt u tijdens kantooruren van maandag t/m vrijdag van 8.30 tot 12.30 uur telefonisch contact met ons opnemen,
op telefoonnummer: +31 (0)6-51 28 64 60.
Of stuur ons een email: [email protected]
* Alle maten zijn circa maten;
* Aan deze presentatie kunnen geen rechten worden ontleend;
* De waarborgsom/bankgarantie is 10% van de koopsom. De koper dient deze binnen 2 weken nadat het financieringsvoorbehoud is verlopen bij de desbetreffende notaris te deponeren;
* Ter bescherming van de belangen van zowel koper als verkoper, wordt uitdrukkelijk gesteld dat een koopovereenkomst met betrekking tot deze onroerende zaak eerst dan tot stand komt nadat koper en verkoper de koopovereenkomst hebben getekend (“schriftelijkheidsvereiste”)